Мы используем куки-файлы. Соглашение об использовании
С мебелью
Общая площадь131,9 м²
Жилая площадь88,7 м²
Площадь кухни16 м²
Этаж25 из 25
Год постройки2012
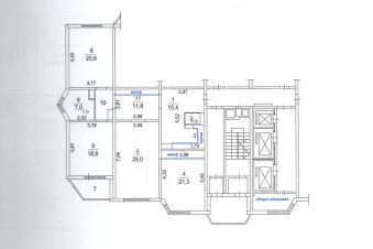
Видовая квартира в Люберцах. 131 КВ.м. (без учёта лоджии 6 КВ.м) Основание договор купли-продажи у застройщика в 2015 году. Один взрослый собственник. Шикарная планировка! Все комнаты просторные и изолированные. Заменена вся проводка. Полы: кухонная зона и сан/узлы - кафельная плитка, все остальное ламинат. Регулируемые теплые полы в кухонной зоне и в большом сан/узле. Стены: ровные, под покраску, большой сан/узел плитка. 2 сан/узла: 1 - большой совмещенный 7 кв.м. (унитаз, ванная 1,8 м, раковина, стиральная машина, бойлер на 80л на случай летнего отключения), 2- маленький 1,5 кв.м. унитаз и раковина. В 2024 году делали плановую поверку всех счетчиков. Кухня оснащена всем необходимым, включая посудомойку. Зал 28 кв.м. идеальное место для вечерних семейных посиделок и встречи с друзьями. 3 изолированные комнаты (19 (+застеклённая лоджия 6 кв.м.), 21 и 21 кв.м.). 2 встроенных 4-хметровых шкафа (в коридоре и в одной из комнат). При улучшении планировки мокрые точки не переносились (все видно на плане). На балкон выведен свет. Окна большие, что дает много света в квартире. Виды потрясающие. Окна выходят на 2 стороны и солнце можно наблюдать с рассвета до заката, а также видно Останкинскую башню и Москва-Сити. На каждом окне установлены качественные антикошки. В подъезде 3 лифта: 1 пассажирский и 2 грузовых, ответственный консьерж. На этаже 4 квартиры. Вещи в коридоре никто не хранит! Есть общее помещение на этаже для хранения вещей. Камеры видеонаблюдения с видео и аудио записью по всей территории вокруг дома, в подъезде, лифтах. У каждой квартиры есть личный доступ к приложению на телефоне. Удобно смотреть свободные парковочные места. Для удобного входа в подъезд, кроме ступенек, есть пандус для велосипедов или колясок. Вдали от шумных магистралей. Остановка напротив подъезда. Маршрутки до ст Люберцы (3 мин) (хотя, пешком всего 10 минут), до м. Некрасовка (5 мин), до м. Выхино (25 мин), до м. Новокосино (60 мин). Пешком до м. Некрасовка 25 мин. У соседнего дома остановки в сторону Мега Белая Дача и м.Братиславкая, в сторону Зенино, Марусино и тд. Легкая альтернатива!
Позвоните автору
Вам ответят на все вопросы

О квартире

Тип жилья

Вторичка

Общая площадь

131,9 м²

Жилая площадь

88,7 м²

Площадь кухни

16 м²

Высота потолков

2,7 м

Санузел

1 совмещенный, 1 раздельный

Балкон/лоджия

1 лоджия

Вид из окон

На улицу и двор

Ремонт

Дизайнерский

Перепланировка

Не было

Продаётся с мебелью

Да

О доме

Год постройки

2012

Количество лифтов

2 пассажирских, 1 грузовой

Тип дома

Панельный

Тип перекрытий

Железобетонные

Подъезды

2

О подъезде

Есть мусоропровод, консьерж

Парковка

Наземная

Отопление

Центральное

Аварийность

Нет

Юридические особенности

Несовершеннолетние собственники

Нет

Материнский капитал при покупке

Не использовался

Спросите умного помощника
Получите экспертное мнение о жилье

Расположение

Ипотечный калькулятор
  • Базовая
  • Семейная
  • ИТ-ипотека
  • 20%
  • 30%
  • 40%
  • 50%
лет
  • 10 лет
  • 20 лет
  • 30 лет
Загружаем предложения от застройщика и банков
Автор объявления
ID 286985
  • Документы проверены
  • 13 лет 5 месяцев на Циане
  • 23 500 000 ₽
    Эксперт от ЦианаПомощь с поиском и сделкой
    Цена за метр
    178 165 ₽/м²
    Условия сделки
    альтернатива
    Ипотека
    возможна
    Автор объявления
    ID 286985
    Документы проверены