323 843 ₽/м²
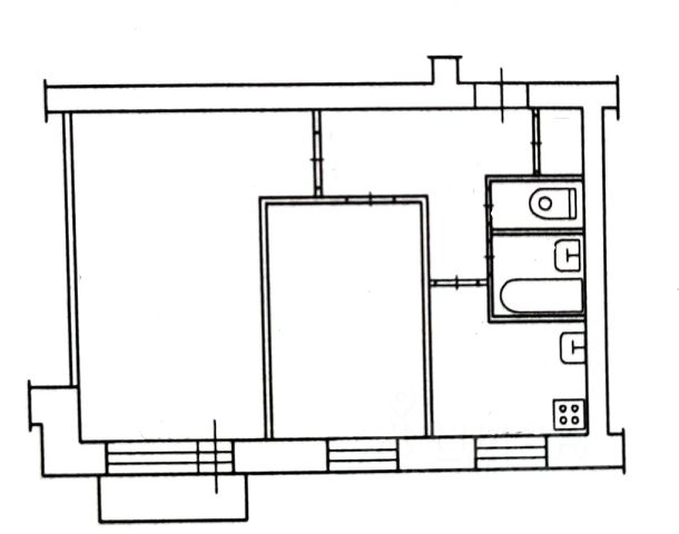
Арт. 135347921 Отличное предложение в Люберцах - квартира с выгодной локацией и готовыми документами! Локация: Квартира находится в районе с развитой инфраструктурой и отличной транспортной доступностью. Метро в 15 минутах пешком — удобно добираться до Москвы без пробок До центра Москвы около 30 минут на метро, что делает квартиру отличным вариантом для тех, кто работает в столице Рядом ж/д станции и остановки общественного транспорта Удобный выезд на Октябрьский проспект, Новорязанское шоссе и МКАД В шаговой доступности магазины, супермаркеты, аптеки, банки Школы, детские сады, поликлиники рядом Для прогулок и отдыха рядом находятся Наташинский парк, Жулебинский лесопарк, зелёные скверы и прогулочные зоны района. Также поблизости расположены Наташинские пруды — одно из любимых мест жителей района для прогулок, отдыха у воды, пробежек и семейного досуга. О доме: Надёжный 9-этажный дом, квартира расположена на комфортном 4 этаже — одном из самых удобных для проживания. Чистый и ухоженный подъезд Спокойные и доброжелательные соседи Тихий зелёный двор Удобный этаж — комфортно для семьи любого возраста Подходит как для жизни, так и для сдачи в аренду Документы: 1 взрослый собственник Более 5 лет собственности Без обременений Быстрый выход на сделку Наше преимущество: Бесплатная помощь в одобрении ипотеки Подберём лучшие условия среди банков Полное юридическое сопровождение сделки Безопасность, прозрачность и комфорт на всех этапах покупки Продам 1-комнатную квартиру в микрорайоне Ухтомка в городе Люберцы.













































































