Мы используем куки-файлы. Соглашение об использовании
Площадь1 450,9 м²
Этаж1 из 1
Сетка колонн12x12
Выс. потолков10.0 м.
ПомещениеСвободно
Отчёт о привлекательности объектаУзнайте, насколько помещение и район подходят для вашего бизнеса
Что входит в отчёт
  • Охват населения
  • Пешеходный трафик
  • Автомобильный трафик
  • Средний бюджет семьи по району
  • Арендные ставки рядом
  • Точки притяжения
  • Конкуренты в радиусе 1 км
  • Рекомендации по выбору места для бизнеса
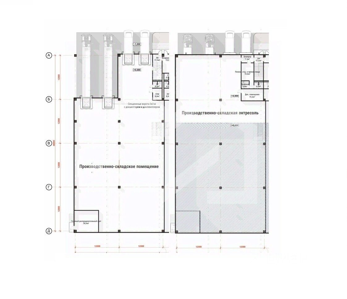
974738. Предлагается современный производственно-складской комплекс общей площадью 1 450.9 кв.м. на территории индустриального парка "Завод", Люберцы. Преимущества: Центр крупной промышленной зоны. 6 минут пешком до станции МЦД-3 "Панки", 10 минут до станции "Люберцы". Развитая транспортная логистика: 8 км от МКАД (20 минут на авто) и 2 км от трассы М5 "Урал". Инфраструктура: магазины, аптеки, кафе — всё в шаговой доступности. Собственная котельная, магистральный газ, центральные коммуникации. Для сотрудников: рядом жилой массив и транспортные узлы. Управляющая компания. Огороженная территория. Парковка. Технические характеристики: Площадь блока: 1 450.9 кв.м. Площадь первого этажа: 994.6 кв.м, площадь антресоли: 456.3 кв.м. Есть возможность адаптации под нужны заказчика. 4 доковых узла: 2 — для фур, 2 — для малотоннажных и легковых авто. Высота потолков: 10 м + антресоль 4,5 м. Нагрузка на пол: 6 т/кв.м, в зоне мезонина: 1,5 т/кв.м. Выделенная мощность: 25 квт в каждом блоке. Готовность - 3 кв. 2026 г. Так как корректный адрес отсутствует на Яндекс.Картах, введен ориентировочный.
lock

Войдите или зарегистрируйтесь
для просмотра информации

Просматривайте условия сделки и всю информацию об объекте
Сохраняйте фильтры в поиске и не вводите заново
Доступ к избранному с любого устройства
Неограниченное добавление в избранное
Позвоните автору
Вам ответят на все вопросы
Остались вопросы по объявлению?
Позвоните владельцу объявления и уточните необходимую информацию.
  • Инфраструктура
  • Похожие рядом
  • Год постройки2026
  • Тип зданияПроизводственно-складской комплекс
  • Категория зданияСтроящееся
  • Общая площадь9 027,75 м²
Помощь надёжных риелторов
Риелтор партнёр Циан поможет купить или продать любую недвижимость
174 108 000 ₽
2 305 233 $
1 972 167
Цена за метр
120 000 ₽
Налог
НДС включен: 31 396 524 ₽
Агентство недвижимости
Документы проверены