Мы используем куки-файлы. Соглашение об использовании
Площадь127,9 м²
Этаж1
Прибыль192 000 ₽/мес.
КатегорияТорговая площадь, свободное назначение, стрит ритейл и еще 1 категория...
Отчёт о привлекательности объектаУзнайте, насколько помещение и район подходят для вашего бизнеса
Что входит в отчёт
  • Охват населения
  • Пешеходный трафик
  • Автомобильный трафик
  • Средний бюджет семьи по району
  • Арендные ставки рядом
  • Точки притяжения
  • Конкуренты в радиусе 1 км
  • Рекомендации по выбору места для бизнеса
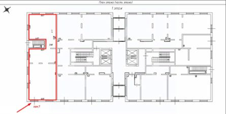
1109533. Предлагаем помещение свободного назначения с арендатором Автошкола, площадью 127.9 кв. м., расположенное на первом этаже жилого дома в ЖК "Люберецкий". Угловой блок. Без комиссии для покупателя. Преимущества объекта: -комплекс состоит из 18 корпусов переменной этажности (от 9 до 25 этажей), рассчитан на более 5 000 квартир; -15 минут пешком от станции метро Некрасовка; -удобный выезд на Комсомольский проспект, Косинское шоссе, МСД; -густонаселённый жилой массив; -сложившееся торговое окружение; -стабильный автомобильный и пешеходный трафик; -объект отлично просматривается, находится в легком доступе для клиентов; -надежный сетевой арендатор; -открытая планировка; -витринное остекление; -место для вывески; -зона разгрузки/погрузки; -наземная парковка; -рядом остановка общественного транспорта. Технические параметры объекта: -отдельный вход с улицы; -электрическая мощность: 26 кВт. Информация об арендаторе: -арендатор: Автошкола; -прибыль: 192 000 руб./мес.; -окупаемость: 12,2 лет; -доходность: 8,2%. Свяжитесь с нами для получения дополнительной информации!
lock

Войдите или зарегистрируйтесь
для просмотра информации

Просматривайте условия сделки и всю информацию об объекте
Сохраняйте фильтры в поиске и не вводите заново
Доступ к избранному с любого устройства
Неограниченное добавление в избранное
Позвоните автору
Вам ответят на все вопросы
Остались вопросы по объявлению?
Позвоните владельцу объявления и уточните необходимую информацию.
  • Инфраструктура
  • Похожие рядом
Помощь надёжных риелторов
Риелтор партнёр Циан поможет купить или продать любую недвижимость
28 100 000 ₽
380 822 $
321 588
Цена за метр
219 703 ₽
Налог
УСН
Агентство недвижимости
Документы проверены