Мы используем куки-файлы. Соглашение об использовании
Помещение свободного назначения, 165,5 м²
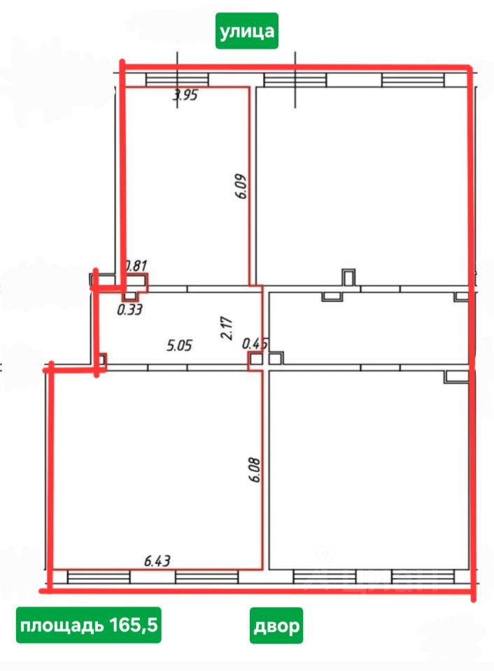
Площадь165,5 м²
Этаж1 из 14
Отчёт о привлекательности объектаУзнайте, насколько помещение и район подходят для вашего бизнеса
Что входит в отчёт
  • Охват населения
  • Пешеходный трафик
  • Автомобильный трафик
  • Средний бюджет семьи по району
  • Арендные ставки рядом
  • Точки притяжения
  • Конкуренты в радиусе 1 км
  • Рекомендации по выбору места для бизнеса
Сдается коммерческое помещение свободного назначения на длительный срок при комплексе ЖК Жулебино парк. Дом построен в 2022 году. Рассмотрим разные сферы деятельности, звоните обсудим. Мощность по умолчанию 0,2квт/кв.м. *165,5кв.м. = 33,1квт, если нужно больше, можно будет увеличить. Высота потолков 4,6м. Проект включает 16 домов разной этажности 14-25 этажей с благоустроенными дворами, где будет в районе 8000 квартир. Примерное кол-во жителей: 16000. Жулебино парк находится в городе Люберцы Московской области. В жилой квартал входят два детских сада, школа, детская и взрослая поликлиники. Все корпуса находятся рядом друг с другом, поэтому ваш бизнес будет заметен абсолютно всем жителям квартала, в каком бы корпусе они ни жили. Дом расположен вдоль улицы, поэтому коммерческие помещения здесь имеют высокий автомобильный и пешеходный трафик, а удобный заезд в квартал позволят привлекать клиентов. Помещение с типовой отделкой (пол-плитка, стены -штукатурка с покраской, потолки - покраска, разводка электрики + освещения). Мокрая точка. Подсобные помещения + антресоль. Вентиляция. Сигнализация. Решетки на входных дверях. Видеонаблюдения внешнее и внутреннее, серверная. В начале для заезда предоставляются при необходимости каникулы. Также есть ещё помещения по жк 73,5/ 92 кв.м.
lock

Войдите или зарегистрируйтесь
для просмотра информации

Просматривайте условия сделки и всю информацию об объекте
Сохраняйте фильтры в поиске и не вводите заново
Доступ к избранному с любого устройства
Неограниченное добавление в избранное
Позвоните автору
Вам ответят на все вопросы
Остались вопросы по объявлению?
Позвоните владельцу объявления и уточните необходимую информацию.
  • Инфраструктура
  • Похожие рядом
  • Тип зданияЖилой комплекс
  • Общая площадь165,5 м²
Приточная вентиляция
Местное кондиционирование
Центральное отопление
Гидрантная система пожаротушения
Помощь надёжных риелторов
Риелтор партнёр Циан поможет купить или продать любую недвижимость
320 000 ₽/мес.

Прямая аренда (от года), минимальный срок аренды 11 месяцев, доступны арендные каникулы, обеспечительный платёж 320000 ₽, предоплата за 1 месяц

4 307 $/мес.
3 614 /мес.
Цена за метр
23 203 ₽ в год
Налог
УСН
Комиссия
нет
Коммунальные платежи
не включены
Эксплуатационные расходы
не включены
Агентство недвижимости
Суперагент