279 300 ₽/м²
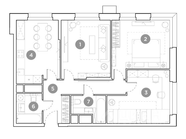
Продается 3-к квартира площадью 75.7 кв.м. на 22-м этаже 25 этажного дома в ЖК "Гоголь парк" от ГК ОСНОВА. О проекте Жилой комплекс ГОГОЛЬ ПАРК с собственным детским садом на территории и подземным паркингом с лифтом будет построен около метро Лухмановская. ЖК ГОГОЛЬ ПАРК новая очередь проекта в Люберцах. В его рамках возведут дом переменной этажности. Первые этажи секций отданы под стрит-ритейл и другую коммерческую инфраструктуру. Особое внимание уделено благоустройству двора озеленение, игровые площадки для детей разных возрастов, уютные ротонды для взрослых, теневые навесы и всесезонная спортивная площадка под крышей. Расположение Путь до ст. м. "Лухмановская" займет всего 9 минут пешком, 4 км до МКАД, 6 минут на автомобиле до ст. м. "Дмитриевская". Инфраструктура Рядом с жилым комплексом есть все необходимое для комфортной жизни: школы, детские сады, поликлиники, аптеки, продуктовые магазины, парки. Ближайший сетевой магазин "Магнит" находится в 265 м от комплекса, для отдыха и прогулок неподалеку Наташинский парк. Особенности проекта Выразительный облик новой очереди ЖК ГОГОЛЬ ПАРК дополнят большие окна, панорамное остекление балконов и витражные окна первого этажа. Предполагаются эргономичные квартиры разных форматов и комнатности, в том числе с балконами и лоджиями. В просторных общих холлах первого этажа предусмотрены мягкие зоны ожидания, комнаты матери и ребенка, гостевые санузлы и комнаты для хранения колясок, самокатов и велосипедов. На подземном уровне помимо парковочных мест кладовые для хранения сезонных вещей. В 2-х минутах от дома будет построен многоуровневый паркинг на 570 машиномест с сервисами для авто! Строительство завершено во втором квартале 2025 года. Дом сдан! Продам 3-комнатную квартиру с двумя санузлами в Люберцах.



























































































