Мы используем куки-файлы. Соглашение об использовании

Дом по адресу улица Льва Толстого, 10к3

Московская область, Люберцы

Лухмановская
14 мин.
Улица Дмитриевского
4 мин.
Некрасовка
5 мин.
4 км от МКАД
8 км от МКАД
9 км от МКАД
Люберцы I
4 мин.
Ухтомская
6 мин.
Панки
8 мин.

Год постройки

1964

Тип дома

Панельный

Тип перекрытий

Железобетонные

Этажность

5

Парадных

4

Квартир

80

Расположение

Объявления в этом доме

Хотите жить в этом доме?
Подпишитесь на новые объявления о продаже или аренде квартир

История объявлений в этом доме

Цена
На Циан
Опубликовано
Снято
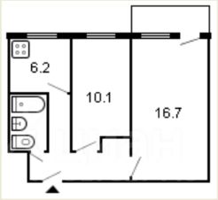
43,2 м², 2-комн., 4/5 этаж
Снято с публикации
8,1 млн ₽
187 500 ₽/м²

2 дня
18 окт 2025
2 дня на Циан
19 окт 2025
46 м², 2-комн., 2/5 этаж
Снято с публикации
6,3 млн ₽
138 043 ₽/м²

49 дней
22 мая 2025
49 дней на Циан
9 июл 2025
44,4 м², 2-комн., 1/5 этаж
Снято с публикации
6,0 млн ₽
135 135 ₽/м²

10 дней
6 июн 2025
10 дней на Циан
15 июн 2025

Управляющая компания

АО "ЛГЖТ"
Россия, Московская область, Люберцы, Юбилейная улица, 5А
Время работы
Пн–Чт
08:00-12:0012:47-17:00
Пт
08:00-12:0012:47-16:00
Сб–Вс
Закрыто
Руководитель
Ежова Марина Васильевна
  • Собрали для вас основную информацию о доме по адресу улица Льва Толстого, 10к3:
  • 🔷 Год постройки — 1964
  • 🔷 Этажность — 5
  • 🔷 Технология строительства — панельный
  • 📍 7 детских садов
  • Ⓜ️ Лухмановская, 14 минут пешком
  • Рядом 2 станции метро:
  • Рядом с домом по адресу улица Льва Толстого, 10к3 в пешей доступности находится:
  • 📍 44 магазина
  • ✅ Минимальная площадь квартиры: 44,8 м²
  • ✅ Объект наибольшей площади: 44,8 м²

Для просмотра актуальных объявлений в доме по адресу улица Льва Толстого, 10к3 перейдите на подходящий раздел: